《土木工程CAD》第一次大作业
一、 作业内容
在计算机上完成题目要求的全部内容。
二、 作业要求
1、 按1:1比例绘制。
2、 尺寸标注参数使用系统缺省配置。
3、 分层绘图。图层、颜色、线型按系统缺省配置。
4、 按题目顺序自行安排图形位置。
5、 存盘时文件名:姓名+学号。
三、作业题目
1.绘制平面图形。(20分)

2.绘制平面图形。(20分)

3.绘制指北针。圆的直径为24mm,指针尖为北向,指针尾部宽度为3mm。(20分)

4.抄绘下面的平面图形,已知四个小圆直径相等。(20分)

5.绘制平面图形。(20分)

《土木工程CAD》第二次大作业
一、 作业内容
在计算机上完成题目要求的全部内容。
二、 作业要求
1、 按1:100的比例画在A3图幅内。(297X420)
2、 尺寸标注参数使用系统缺省配置。
3、 分层绘图。图层、颜色、线型按系统缺省配置。
4、 按题目顺序自行安排图形位置。
5、 存盘时文件名:姓名+学号。
三、 作业题目
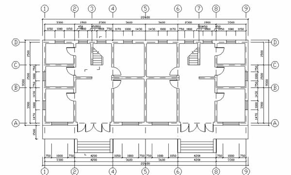
绘制平面图(教材P247页图)(100分)

上一篇:河南电大工商管理专业“第二届岗位技能交流暨案例设计与分析大赛”通知
下一篇:国家开放大学学习指南形考作业(附答案)